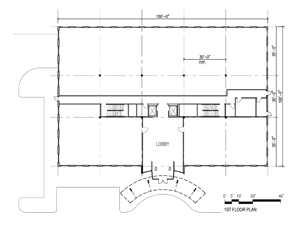
Schaumburg Medical Center
This proposed development consists of two, brand new Class A, 45,000 square foot, multi-story medical-office buildings. The site is extremely well located at the new 4-way interchange at Roselle Rd and the I-90 Tollway in Schaumburg, IL, and is ideal for medical tenants as it is centralized between 3 major medical facilities: 4.6 Miles to St. Alexius Medical Center, 6.9 Miles to Northwest Community Hospital, 7 Miles to Alexian Brothers Medical Center.






